部屋一覧
賃貸(借りたい)
ジオタワー南森町
全物件1件
公開物件1件
会員限定0件
| 追加 | 状態 | 所在階 | 賃料 | 管理費+共益費 | 敷金 | 礼金 | 間取り | 面積 | 詳細 |
|---|---|---|---|---|---|---|---|---|---|
| 公開中 | 22階 | 40万円 | 50,000円 | 200万円 | 150万円 | 3LDK | 91.09㎡ | 詳細を見る |
※データ更新のタイミングにより、ごく稀に募集終了物件が掲載される場合があります。
購入(買いたい)
ジオタワー南森町
全物件1件
公開物件0件
会員限定1件
| 追加 | 状態 | 所在階 | 価格 | 管理費+共益費 | 間取り | 面積 | 表面利回り | 詳細 |
|---|---|---|---|---|---|---|---|---|
| 会員限定 | 会員限定 | 会員限定 | 会員限定 | 会員限定 | 会員限定 | 会員限定 | 詳細を見る |
※データ更新のタイミングにより、ごく稀に募集終了物件が掲載される場合があります。
物件概要
- 保証金
- -
- 敷引 / 償却
- - / -
- 敷金積み増し
- -
- その他初期費用
- -
- その他月額費用
- -
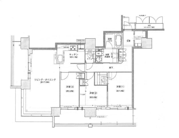
- 間取り/詳細
- 3LDK
LDK 21.9帖/洋室 5.2帖/洋室 5.8帖/洋室 7.0帖
- 向き
- 南西
- 専有面積
- 91.09㎡
- バルコニー
(テラス)面積 - -
- 所在階 / 階建て
- 22階 / 37階建 地下1階
- 建物構造
- 鉄筋コンクリート
- 築年月
- 2021年1月(築5年)
- 種別
- 賃貸マンション
- 保険会社 / 料金
- 有 火災保険 / -
- 保証会社 / 料金
-
必加入 / その他
初回:総賃料の50%、更新料有
- 現況
- 居住中
- 入居可能時期
- 2026年05月上旬予定
おすすめポイント
ぜひ一度見ていただきたい、「ジオタワー南森町」です。共用部には敷地内ごみ置き場・エレベータなどが揃っており、とても充実しています。37階建ての物件を是非ご覧ください。タワー型マンションから眺める景色は毎日の疲れも癒されます。高層階に所在する物件です。当社スタッフが地域の賃貸情報をご提供いたします。お客様のこだわりやご要望などございましたら、お気軽に当社へお問い合わせ下さい。
アクセス・周辺環境
買いたい(売出中)
ジオタワー南森町で販売中の物件
- 全物件 1件
- 公開 0件
- 会員限定 1件
借りたい(賃貸募集中)
ジオタワー南森町で募集中の物件
- 全物件 1件
- 公開 1件
- 会員限定 0件
ジオタワー南森町で過去に掲載された物件
- 全物件 13件
- 公開 10件
- 会員限定 3件