大阪福島タワー(OSAKA福島タワー)

住所
大阪府大阪市福島区福島4丁目
築年数
2011年1月(築15年)
総戸数
540戸
階建
45階建
交通

東西線新福島」駅 徒歩5分

大阪環状線野田」駅 徒歩7分

大阪環状線福島」駅 徒歩8分

MAP

タワーマンションを売却・購入・賃貸に出したい

部屋一覧

購入(買いたい)

大阪福島タワー(OSAKA福島タワー)

全物件1

公開物件1

会員限定0

追加 状態 所在階 価格 管理費+共益費 間取り 面積 表面利回り 詳細
公開中 35階 8,680万円 11,630円 2LDK 76.03㎡ 3.70%

※データ更新のタイミングにより、ごく稀に募集終了物件が掲載される場合があります。

物件概要

価格
8,680万円
表面利回り
3.70%
管理費
11,630円
修繕積立金
14,450円
修繕積立基金
14,450円
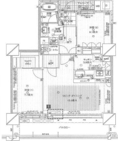
間取り/詳細
2LDK
LDK 18.8帖/洋室 6.1帖/洋室 7.1帖
向き
専有面積
76.03㎡
その他面積
-
-
-
土地権利
所有権
国土法届出要否
不要
接道状況
-
用途地域
-
地勢
-
都市計画
-
建物構造
鉄筋コンクリート
管理方式 /
管理人
管理会社に全部委託 / 常駐
所在階 / 階建て
35階 / 45階建 地下1階
築年月
2011年1月(築15年)
取引態様
仲介
現況
賃貸中
引渡し
相談
管理会社 /
管理組合有無
- / 有
取引条件の
有効期限
2026年03月25日

おすすめポイント

新着情報:大阪福島タワー(OSAKA福島タワー)の空室情報ならコチラ。御身体の不自由な方でも安心のエレベーター付きの物件となっています。こちらは45階建ての建物です。タワー型のマンションです。人生で一度あるかないかの不動産購入で、失敗なんてしたら取り返しが付かないですよね。そんなことがないように、当社の経験豊富なスタッフがしっかりとサポート致します。

タワーマンションを売却して、賃貸で住み替えを検討している方へ

賃貸からタワーマンション購入まで、
無料でご相談承ります。

買いたい(売出中)

大阪福島タワー(OSAKA福島タワー)で販売中の物件

  • 全物件 1
  • 公開 1
  • 会員限定 0

大阪福島タワー(OSAKA福島タワー)で過去に掲載された物件

  • 全物件 32
  • 公開 15
  • 会員限定 17