クレヴィアタワー大阪本町

住所
大阪府大阪市中央区瓦町3丁目
築年数
2019年1月(築7年)
総戸数
181戸
階建
30階建
交通

地下鉄御堂筋線本町」駅 徒歩5分

地下鉄中央線堺筋本町」駅 徒歩7分

京阪本線北浜」駅 徒歩7分

MAP

タワーマンションを売却・購入・賃貸に出したい

部屋一覧

購入(買いたい)

クレヴィアタワー大阪本町

全物件1

公開物件1

会員限定0

追加 状態 所在階 価格 管理費+共益費 間取り 面積 表面利回り 詳細
公開中 22階 9,100万円 9,100円 1LDK 57.01㎡ -

※データ更新のタイミングにより、ごく稀に募集終了物件が掲載される場合があります。

物件概要

管理費
9,100円
修繕積立金
14,700円
修繕積立基金
14,700円
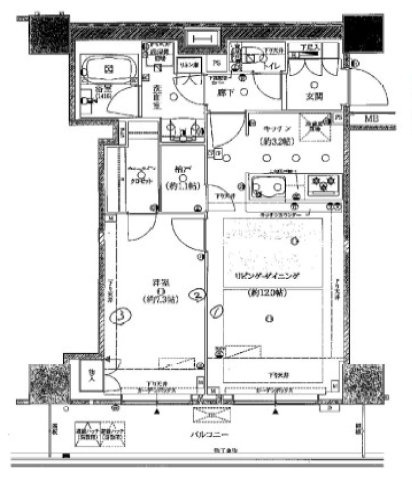
間取り
1LDK
LDK 15.2帖/洋室 7.3帖
向き
-
専有面積
57.01㎡
バルコニー面積
11.24㎡
その他面積
-
-
-
所在階 / 階建て
22階 / 30階建
建物構造
鉄筋コンクリート
築年月
2019年1月(築7年)
種別
中古マンション
土地権利
所有権
借地料 /
借地期間
- / -
土地
(敷金 / 保証金)
-(-)
国土法届出要否
不要
接道状況
-
用途地域
-
地勢
-
都市計画
-
現況
居住中
引渡し
相談
取引態様
仲介
棟総戸数
181戸
管理形態
管理会社に全部委託
管理会社
(管理組合有無)
-(有)
取引条件の
有効期限
2026年04月28日

おすすめポイント

中古でありながら、室内もきれいな一押しのマンションとなっています。こちらは利便性の高いエレベーター付きの物件です。制震構造は、様々な技術開発が行われていて、日々進歩し続けています。築7年の設備が充実した物件となっています。大阪市中央区で不動産をお探しなら、地域に密着した当社にお任せ下さい。信頼と実績を誇る当社は、確かな情報をご提供致します。

タワーマンションを売却して、賃貸で住み替えを検討している方へ

賃貸からタワーマンション購入まで、
無料でご相談承ります。

買いたい(売出中)

クレヴィアタワー大阪本町で販売中の物件

  • 全物件 1
  • 公開 1
  • 会員限定 0

クレヴィアタワー大阪本町で過去に掲載された物件

  • 全物件 17
  • 公開 11
  • 会員限定 6