部屋一覧
購入(買いたい)
クラッシィタワー靭公園(靱公園)
全物件1件
公開物件1件
会員限定0件
| 追加 | 状態 | 所在階 | 価格 | 管理費+共益費 | 間取り | 面積 | 表面利回り | 詳細 |
|---|---|---|---|---|---|---|---|---|
| 公開中 | 9階 | 8,980万円 | 16,940円 | 2LDK | 55.22㎡ | - | 詳細を見る |
※データ更新のタイミングにより、ごく稀に募集終了物件が掲載される場合があります。
物件概要
- 管理費
- 16,940円
- 修繕積立金
- 6,100円
- 修繕積立基金
- 6,100円
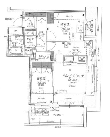
- 間取り
- 2LDK
LDK 14.6帖/洋室 4.5帖/洋室 5.4帖
- 向き
- 北東
- 専有面積
- 55.22㎡
- バルコニー面積
- 9.19㎡
- その他面積
- -
-
-
- 所在階 / 階建て
- 9階 / 27階建
- 建物構造
- 鉄筋コンクリート
- 築年月
- 2022年3月(築4年)
- 種別
- 中古マンション
- 土地権利
- 所有権
- 借地料 /
借地期間 - - / -
- 土地
(敷金 / 保証金) - -(-)
- 国土法届出要否
- 不要
- 接道状況
- -
- 用途地域
- -
- 地勢
- -
- 都市計画
- -
- 現況
- 居住中
- 引渡し
- 相談
- 取引態様
- 仲介
- 棟総戸数
- 176戸
- 管理形態
- 管理会社に全部委託
- 管理会社
(管理組合有無) - -(有)
- 取引条件の
有効期限 - 2026年03月22日
おすすめポイント
2022年3月築で地域にも馴染んだ物件でもあり、住環境も良好。中古でありながら、室内もきれいな一押しのマンションとなっています。屋根や柱、梁や壁など主要構造部が耐火構造となっています。周辺環境も充実の27階建ての物件。大阪市西区でOST不動産オススメの不動産をお求めなら、当社へお気軽にお問い合わせ下さい。ご要望やご質問なども承っております。
アクセス・周辺環境
買いたい(売出中)
クラッシィタワー靭公園(靱公園)で販売中の物件
- 全物件 1件
- 公開 1件
- 会員限定 0件
クラッシィタワー靭公園(靱公園)で過去に掲載された物件
- 全物件 8件
- 公開 4件
- 会員限定 4件